Arkitektur

Designprincipper og inspiration

Byggeriet kommer til at ligge i et tidligere industrikvarter tæt på Amager strandpark og Kløvermarken. Derfor er der lagt vægt på at afstemme bygningens arkitektur med områdets industrielle historie, samt give lys, luft og udsigt til de nære landskabelige og urbane kvaliteter, bl.a. udsigten over kløvermarken ind mod byens tårne.

Lys, grønne områder og arkitektonisk charme

Altaner, haver og terrasser er placeret, så de får bedst muligt dagslys, og så de grønne områder ligger inde i området og væk fra de store veje.

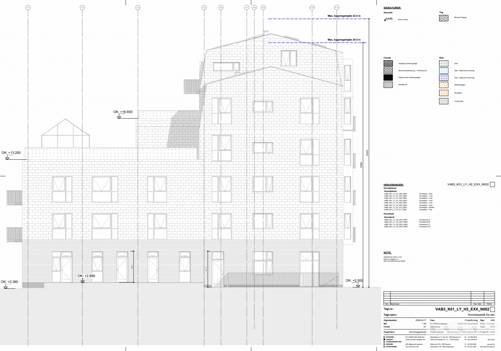
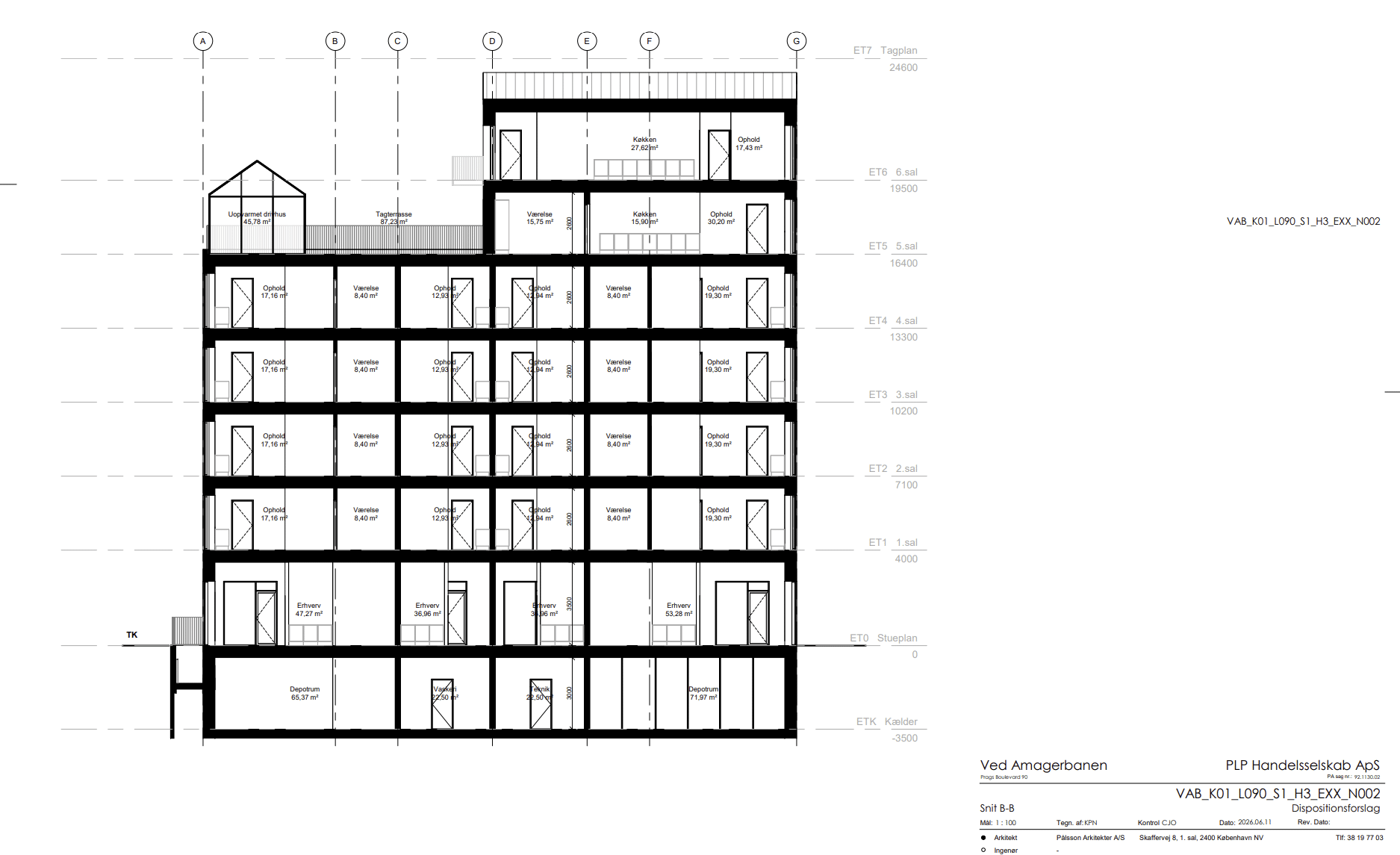
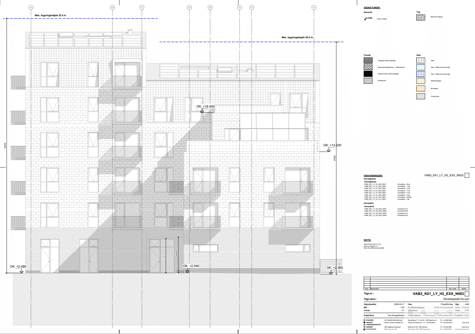
Bygningerne har skrå tage for at spejle de gamle københavnerkarréer på Amagerbro. Hver af de to bygninger varierer i højde, hvilket giver mulighed for fælles tagterrasse på en eller begge bygninger. 

Visuelt udtryk

Bygningen Yderlandsvej 3/Prags Boulevard 90 set fra nord, øst, syd og vest:

Visuelt udtryk

Bygningen Ved Amagerbanen 3-5/Yderlandsvej 2 set fra nord, øst, syd og vest:

Kontakt os