Ejerboliger på Ved Amagerbanen 3
Ejerboliger på Ved Amagerbanen 3
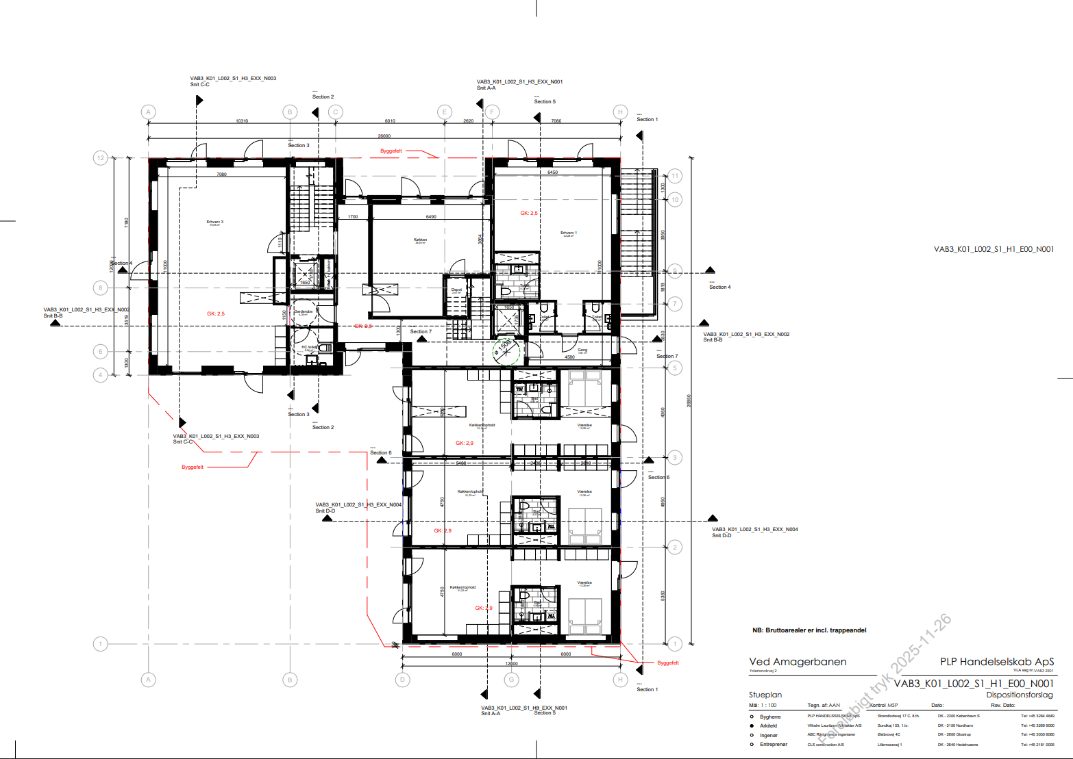
Opgang 1
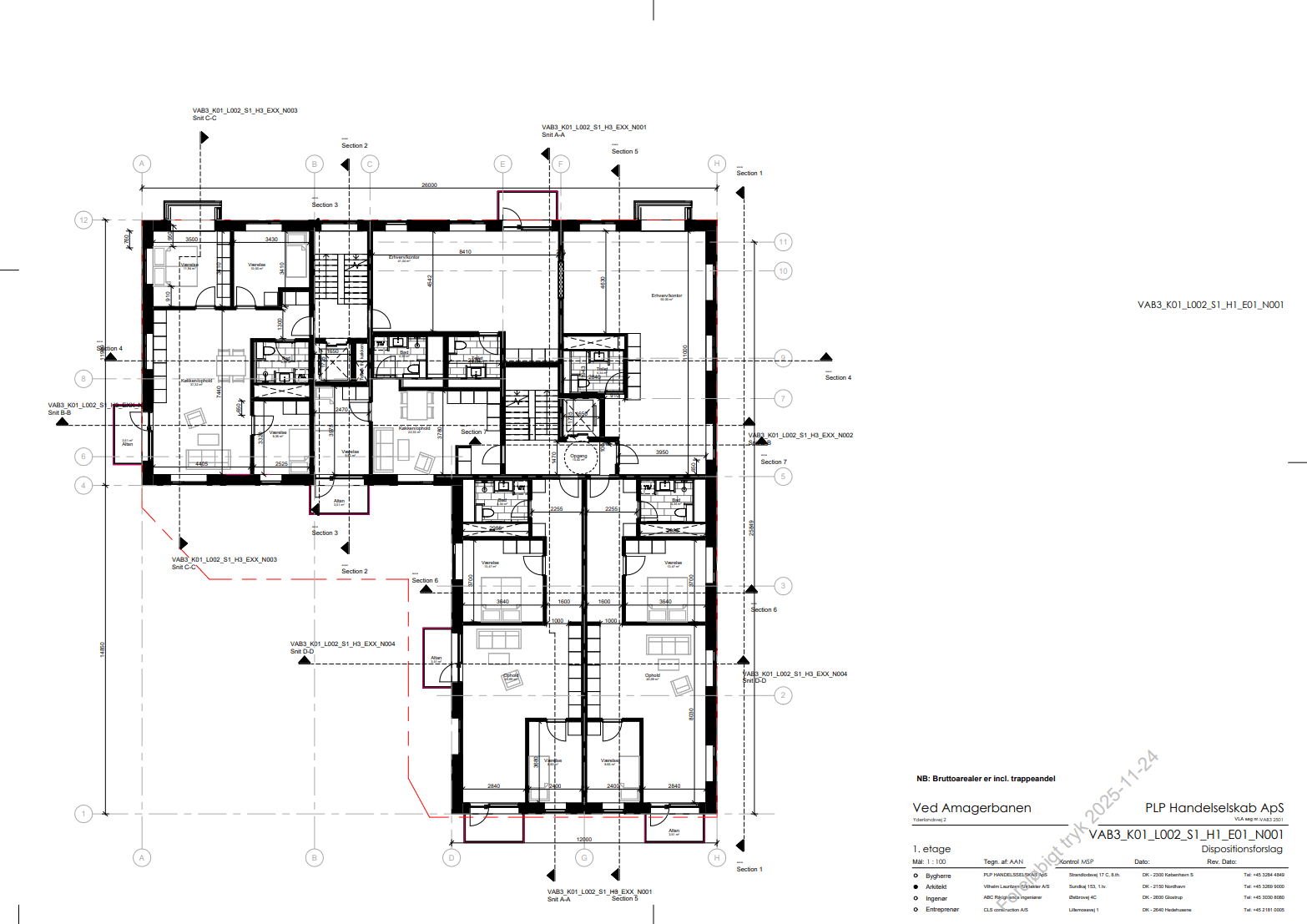
| Bolignummer Lejlighed 1 | Etage stuen | Vær. 2 | BBR M2 65.87 | Fællesrum M2 13-15 | Altan/terrasse Terrasse | Plantegning Se plantegning |
| Bolignummer Lejlighed 2 | Etage stuen | Vær. 2 | BBR M2 61.07 | Fællesrum M2 13-15 | Altan/terrasse Terrasse | Plantegning Se plantegning |
| Bolignummer Lejlighed 3 | Etage stuen | Vær. 2 | BBR M2 61,68 | Fællesrum M2 13-15 | Altan/terrasse Terrasse | Plantegning Se plantegning |
| Bolignummer Lejlighed 4 | Etage 1. sal | Vær. 3 | BBR M2 104,04 | Fællesrum M2 13-15 | Altan/terrasse 2 altaner | Plantegning Se plantegning |
| Bolignummer Lejlighed 5 | Etage 1. sal | Vær. 3 | BBR M2 104,19 | Fællesrum M2 13-15 | Altan/terrasse Altan | Plantegning Se plantegning |
| Bolignummer Lejlighed 6 | Etage 1. sal | Vær. 2 | BBR M2 59,22 | Fællesrum M2 13-15 | Altan/terrasse Altan | Plantegning Se plantegning |
| Bolignummer Lejlighed 7 | Etage 1. th | Vær. 4 | BBR M2 107,75 | Fællesrum M2 13-15 | Altan/terrasse Altan | Plantegning Se plantegning |
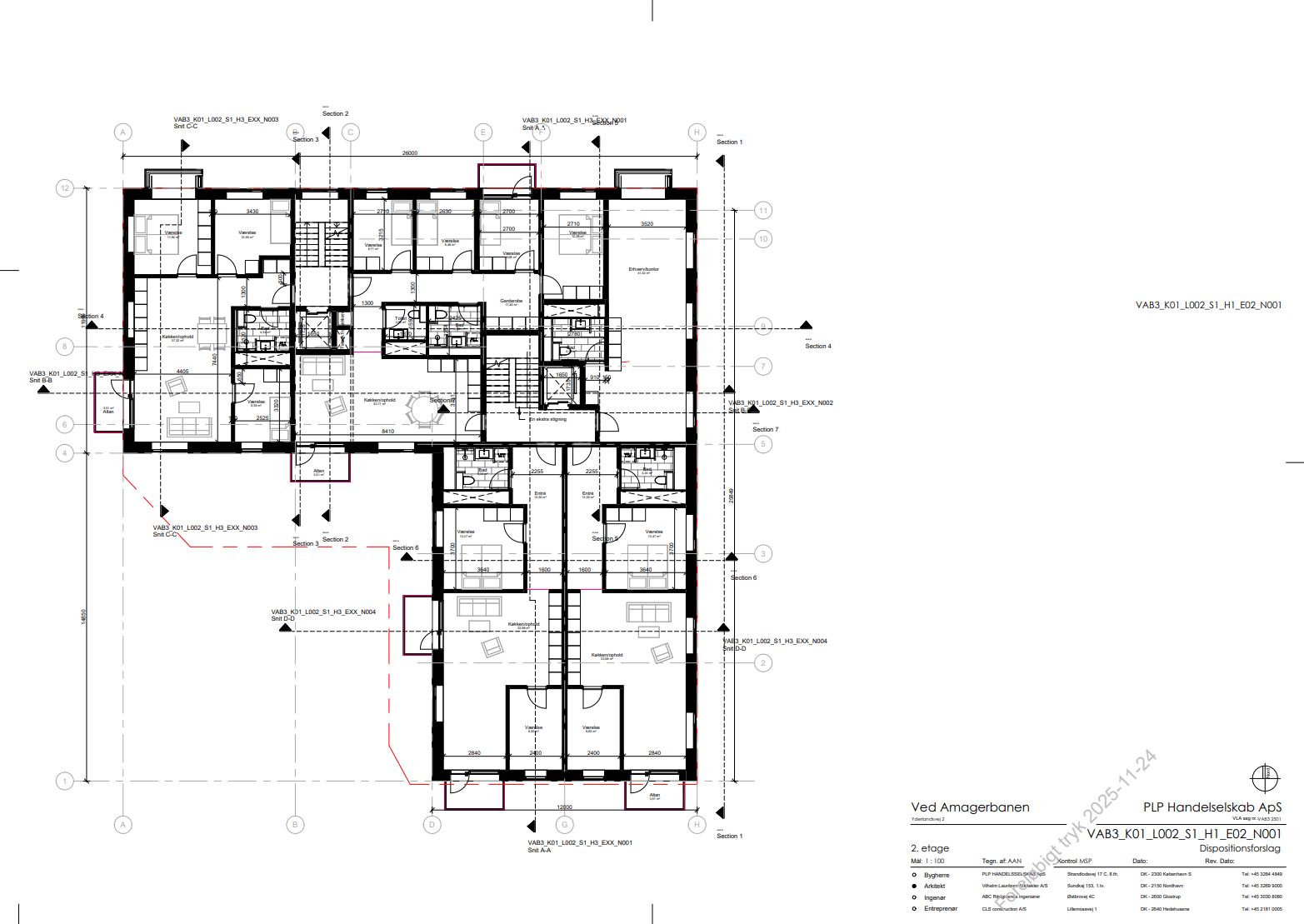
| Bolignummer Lejlighed 8 | Etage 2. sal | Vær. 3 | BBR M2 104,04 | Fællesrum M2 13-15 | Altan/terrasse 2 altaner | Plantegning Se plantegning |
| Bolignummer Lejlighed 9 | Etage 2. sal | Vær. 3 | BBR M2 104,19 | Fællesrum M2 13-15 | Altan/terrasse Altan | Plantegning Se plantegning |
| Bolignummer Lejlighed 10 | Etage 2. sal | Vær. 5 | BBR M2 130,6 | Fællesrum M2 13-15 | Altan/terrasse 2 altaner | Plantegning Se plantegning |
| Bolignummer Lejlighed 13 | Etage 2. th | Vær. 4 | BBR M2 107,75 | Fællesrum M2 13-15 | Altan/terrasse Altan | Plantegning Se plantegning |
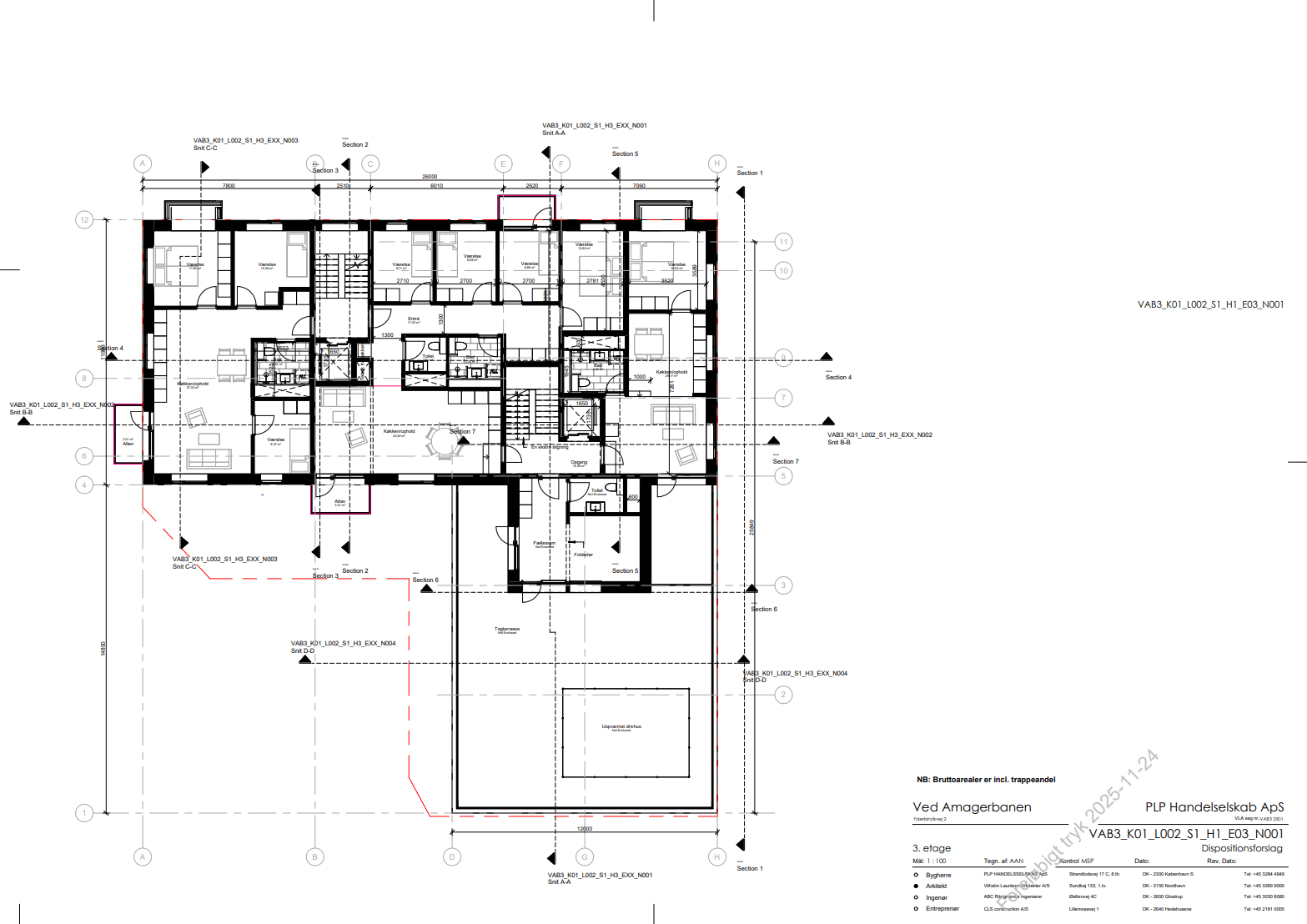
| Bolignummer Lejlighed 15 | Etage 3. tv | Vær. 5 | BBR M2 131,47 | Fællesrum M2 13-15 | Altan/terrasse 2 altaner | Plantegning Se plantegning |
| Bolignummer Lejlighed 16 | Etage 3. tv | Vær. 2 | BBR M2 77,42 | Fællesrum M2 13-15 | Altan/terrasse Tagterrasse | Plantegning Se plantegning |
| Bolignummer Lejlighed 17 | Etage 3. th | Vær. 4 | BBR M2 107,75 | Fællesrum M2 13-15 | Altan/terrasse Altan | Plantegning Se plantegning |
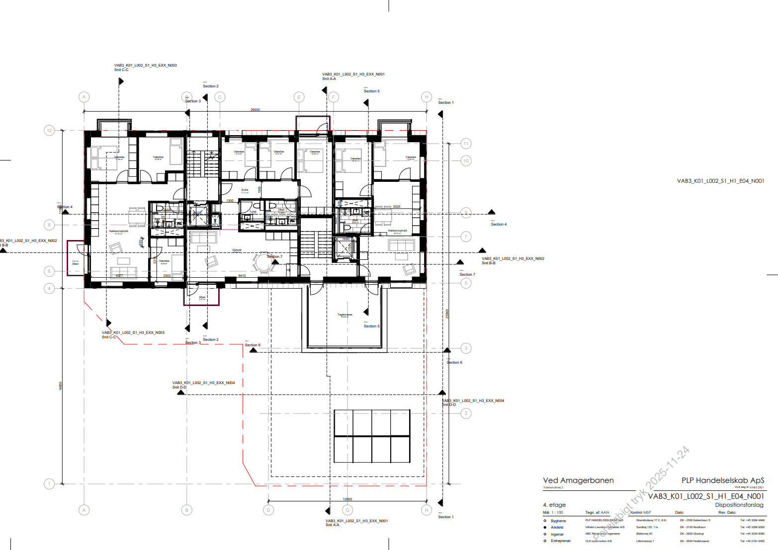
| Bolignummer Lejlighed 18 | Etage 4. th | Vær. 4 | BBR M2 113,84 | Fællesrum M2 13-15 | Altan/terrasse 2 altaner | Plantegning Se plantegning |
| Bolignummer Lejlighed 20 | Etage 4. tv | Vær. 3 | BBR M2 90,52 | Fællesrum M2 13-15 | Altan/terrasse Tagterrasse | Plantegning Se plantegning |
| Bolignummer Lejlighed 21 | Etage 4. th | Vær. 4 | BBR M2 107,75 | Fællesrum M2 13-15 | Altan/terrasse Altan | Plantegning Se plantegning |
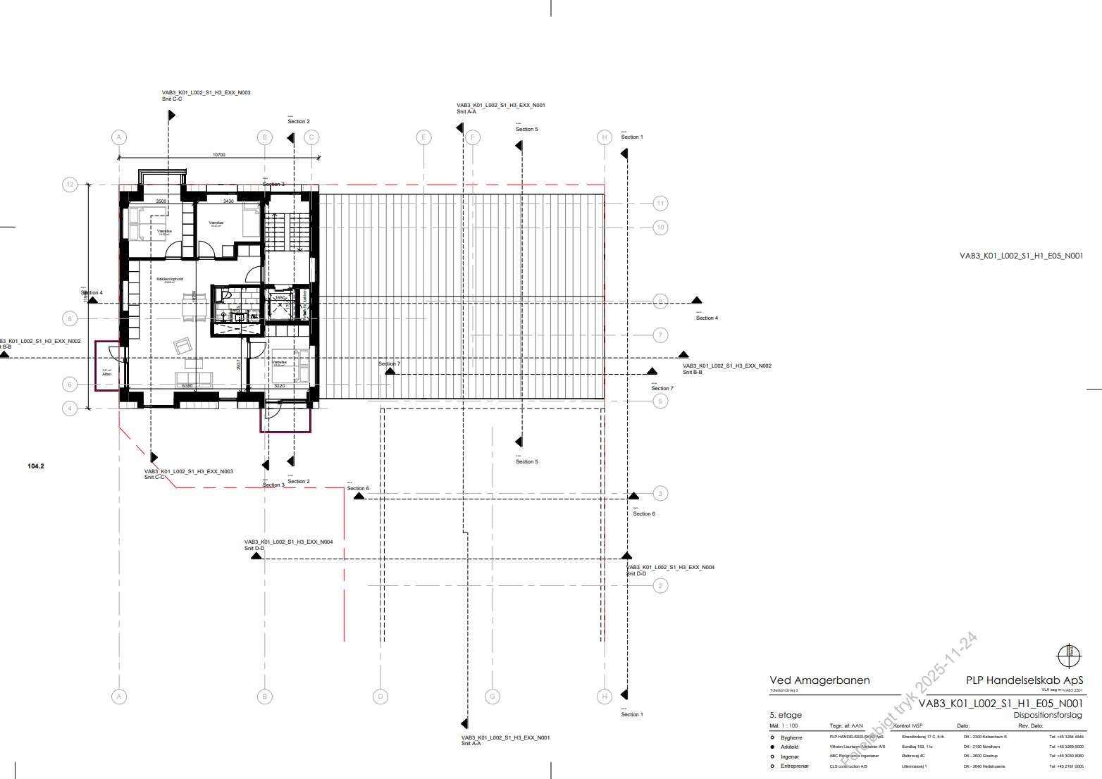
| Bolignummer Lejlighed 22 | Etage 5. | Vær. 4 | BBR M2 119,05 | Fællesrum M2 13-15 | Altan/terrasse 2 altaner | Plantegning Se plantegning |